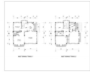
THÔNG TIN CÔNG TRÌNH
- Chủ đầu tư: Anh Hùng
- Địa điểm: Long Biên – Hà Nội
- Loại Hình: Biệt thự (04 Tầng)
- Diện tích: 420m2
- Tổng mức đầu tư: 2 tỷ
- Đơn vị thiết kế: Xây Dựng & Nội Thất Gia Bảo
- Năm thực hiện: 2006





XÂY DỰNG & NỘI THẤT GIA BẢO – TẠO DỰNG TỪ TÂM, NÂNG TẦM GIÁ TRỊ
Facebook: Nội Thất Gia Bảo
Website: xaydunggiabao.net.vn
Youtube: Nội Thất Gia Bảo
Email: xaydungnoithatgiabao83@gmail.com
Hotline: 0567.269.333 – 0948.260.783
Xưởng sản xuất: Đường Hữu Hưng – Dương Nội – Hà Đông – Hà Nội


