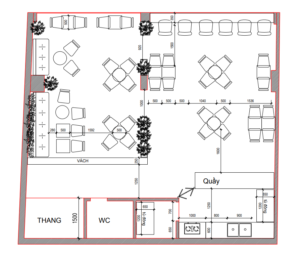
THÔNG TIN CÔNG TRÌNH
- Chủ đầu tư: Anh Nam
- Địa điểm: Cổ Nhuế – Bắc Từ Liêm – Hà Nội
- Loại Hình: Quán ăn
- Diện tích: 80m2
- Đơn vị thiết kế: Xây Dựng & Nội Thất Gia Bảo
- Năm thực hiện: 2024









XÂY DỰNG & NỘI THẤT GIA BẢO – TẠO DỰNG TỪ TÂM, NÂNG TẦM GIÁ TRỊ
Facebook: Nội Thất Gia Bảo
Website: xaydunggiabao.net.vn
Youtube: Nội Thất Gia Bảo
Email: xaydungnoithatgiabao83@gmail.com
Hotline: 0567.269.333 – 0948.260.783
Xưởng sản xuất: Đường Hữu Hưng – Dương Nội – Hà Đông – Hà Nội
